
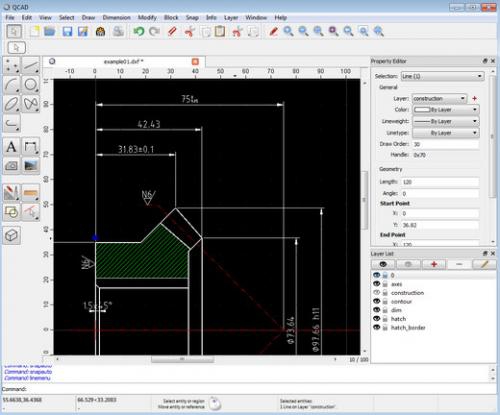
QCad (โปรแกรมออกแบบ CAD แบบ 2 มิติ ฟรี) : โปรแกรมนี้เป็น โปรแกรมออกแบบ ประเภท CAD 2 มิติ แจกฟรี QCAD ขนาดเล็ก สามารถใช้ออกแบบได้หลากหลาย ใช้งานง่าย มีรูปร่างหน้าตาโดยคล้ายๆ โปรแกรมวาดรูป อย่าง Paint แต่จริงๆ หารู้ไม่ว่ามันคือโปรแกรมออกแบบ ที่มีคุณภาพเทียบเท่า โปรแกรมออกแบบแพงๆ ราคาหลายหมื่นหลายแสนบาทเลยทีเดียว
ภายในโปรแกรม มีรูปทรงหลายรูปทรง วาดรูป ลากเล้น โค้งเว้า วงรี (Ellipse) ลายสลัก (Spline) หรือจะเป็นแบบ Polylines หรือเส้นหลายเหลี่ยม ออกแบบร่างต่างๆ มีรูปแบบตัวอักษร แบบ TrueType Font ที่ใช้ในการออกแบบ มากกว่า 35 แบบ สนับสนุนการออกแบบ วาดรูปแบบชั้น (Layer) มีรูปแบบบล็อกให้เลือก สามารถวาดภาพได้หลากหลาย สนับสนุนไฟล์ตระกูล .DXF และ .DWG ทั้งการนำไฟล์เข้า และส่งไฟล์ออก (Input / Output) สามารถพิมพ์ออกมาผ่านเครื่องปริ้นเตอร์ได้ที่สนับสนุนทั้ง 2 โหมดคือ พิมพ์ชิดขอบในหน้าเดียวกัน หรือ พิมพ์แบบต่อกันลงบนกระดาษหลายๆ แผ่น หลายๆ หน้าได้อีกด้วย
Note : สำหรับ โปรแกรม QCAD นี้ ทางผู้พัฒนา โปรแกรม (Program Developer) เขาได้แจกให้ ทุกท่านได้นำไปใช้กันฟรีๆ (FREE) ท่านไม่ต้องเสียค่าใช้จ่ายใดๆ ทั้งสิ้นครับ



คำสำคัญ
|
ความคิดเห็นที่ 9
26 ตุลาคม 2558 20:56:05
|
||
|
GUEST |
|
tjblue
ตั้งหรือกำหนดกระดาษใหม่ ทำยังไงครับ หาแล้วไม่เจออะครับ ? หรือว่าตั้งได้ครั้งเดียวครับ
|
|
ความคิดเห็นที่ 8
9 ตุลาคม 2558 15:02:51
|
||
|
GUEST |
|
เสือ สำอาง
มีประโยชย์มาก
|
|
ความคิดเห็นที่ 7
8 ตุลาคม 2558 13:03:14
|
||
|
GUEST |
|
00
ขอบคุณคะ
|
|
ความคิดเห็นที่ 6
11 สิงหาคม 2558 20:28:04
|
||
|
GUEST |
|
lll
372
|
|
ความคิดเห็นที่ 5
7 กรกฎาคม 2558 17:23:34
|
||
|
GUEST |
|
นาย พาน
ผมขอวิธีใช้ครับ
|
|
ความคิดเห็นที่ 4
1 ตุลาคม 2557 14:29:48
|
||
|
GUEST |
|
ธนกฤต สร้อยคำ
ต้องการใช่งานในการเขียนแบบงาน
|
|
ความคิดเห็นที่ 3
3 มิถุนายน 2557 23:01:20
|
||
|
GUEST |
|
jan khuenkaew
ดี
|
|
ความคิดเห็นที่ 2
22 กุมภาพันธ์ 2557 17:46:22
|
||
|
GUEST |
|
kaumphai
เยี่ยม..ไปเลยครับ
|
|
ความคิดเห็นที่ 1
26 พฤศจิกายน 2556 22:15:43
|
||
|
GUEST |
|
serm
Good
|